- HOME
- 見学会・講演会・講習会など
- 見学会のご案内一覧
- 第38回『茶室』見学会
この催しは建築CPD情報提供制度 認定プログラム申請予定です。
令和7年度 情報見学小委員会 主催第38回『茶室』見学会
この催しは建築CPD情報提供制度 認定プログラム申請予定です。
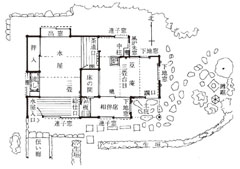
第38回を迎えます茶室見学会。今回は、大徳寺三玄院の「篁庵」を見学させて頂きます。藪内家「燕庵」の写しとして大変貴重な茶室を、京都建築専門学校副校長の桐浴先生による解説で楽しんで頂ければと思います。皆様の参加をお待ちしています。
京都藪内家には初代剣仲が古田織部から贈られた茶室が伝来している「燕庵」がある。藪内家は二代紹智以来、西本願寺門主の茶道師家に迎えられており、文政八(1825)年文如上人が藪内家の燕庵を山内に写し建てた。これが篁庵である。明治になって篁庵は三玄院に移築されて現在に至っている。移築の際茅葺の屋根が緩い瓦葺に改められたが、他は殆ど旧態を伝えている。燕庵は、古田織部の好みを代表する茶室で、江戸時代には利休の待庵と並ぶ茶室の典型のように取り上げられていた。三畳台目の客座に二本襖を隔てて一畳板畳入の別畳を付した間取が特色である。この別畳のあることによって、客座の伸縮も可能である。別畳の使われ方等、この茶室には織部による創意工夫が多く含まれている。とりわけ注目されるのが窓の多いことで八窓を数える。利休とは対照的な工夫であった。そうした織部の工夫を検証することの出来る遺構である。
| 日時 | 2025年12月6日(土) 13:30~15:30(予定) 受付開始 13:15 ※定員に達しましたので募集を終了しました |
|---|---|
| 定員 | 20名(定員になり次第締切) |
| 参加費 | 会員:4,000円 一般:5,500円 |
| 見学先 | 大徳寺三玄院「篁庵」 |
| 所在地 | 京都市北区紫野大徳寺町76 |
| 最寄駅 | 京都市営地下鉄「北大路」 京都市営バス「大徳寺前」 |
| 講師 | 桐浴邦夫(京都建築専門学校 副校長) |
| 申込方法 |
(1) 催し名「第38回茶室見学会」 (2) 氏名(フリガナ) (3) 会員・一般の別 (4) 職場名または学校名 (5) 郵便番号、住所 (6) 当日連絡先電話番号 (7) メールアドレス (8) CPD単位申請希望者はCPD登録番号を明記 ※見学会は参加費の前払い制となっております。お申し込み後、協会よりお支払い方法をご案内いたします。ご入金の確認が取れ次第、参加証をE-mailにてお送りします。 |
| 申込先 | 一般社団法人 日本建築協会(担当:中内) 登録番号:(T4120005003412) TEL : 06-6946-6981 E-mail:jigyoka@aaj.or.jp |
| 締切日 | 2025年11月27日(木) ※ただし定員になり次第、締め切らせていただきます。 |
■講師プロフィール
桐谷 邦夫
(京都建築専門学校 副校長)
1960年和歌山県生まれ。
京都工芸繊維大学大学院修士課程で中村昌生先生に師事し、その後東京大学で博士号を取得。専門は、建築歴史意匠・茶の湯文化・伝統建築保存活用。著書に『茶室33選 利休・遠洲から近代まで』(a+u建築と都市2022年11月臨時増刊)、『世界で一番やさしい茶室設計』(エクスナレッジ2020)、『茶の湯空間の近代』(思文閣出版2018)、『近代の茶室と数寄屋』淡交社2004)などがある。


